Hệ Thống Điều Hòa Không Khí Biệt Thự Moceva: Giải Pháp Hiện Đại, Đẳng Cấp

Dự án Moceva Villa tại TP. Vinh, Nghệ An, với quy mô 3 tầng và 750m² sàn xây dựng, được thiết kế để mang lại không gian sống đẳng cấp, tiện nghi tối đa. Trong đó, hệ thống điều hòa thông gió đóng vai trò then chốt, không chỉ làm mát mà còn tạo ra bầu không khí trong lành, dễ chịu. VT-House Design & Construction, đơn vị tư vấn thiết kế cơ điện (MEPF), đã lựa chọn và triển khai giải pháp điều hòa không khí hiện đại, phù hợp với tiêu chuẩn của một biệt thự cao cấp.

Giải Pháp Điều Hòa Không Khí VRV/VRF Hiện Đại

Với Moceva Villa, VT-House đã tư vấn sử dụng hệ thống điều hòa không khí VRV/VRF (Variable Refrigerant Volume/Flow). Đây là công nghệ tiên tiến nhất hiện nay, mang lại nhiều ưu điểm vượt trội so với các hệ thống điều hòa truyền thống:

  • Tiết kiệm năng lượng: Hệ thống VRV/VRF cho phép điều chỉnh công suất linh hoạt, chỉ sử dụng năng lượng cần thiết để đáp ứng tải nhiệt thực tế của từng khu vực.

  • Tính thẩm mỹ cao: Dàn lạnh được thiết kế đa dạng (âm trần nối ống gió, cassette âm trần) và bố trí ẩn trong trần, không làm ảnh hưởng đến không gian nội thất.

  • Vận hành độc lập: Một dàn nóng có thể kết nối với nhiều dàn lạnh khác nhau, cho phép điều khiển nhiệt độ độc lập cho từng phòng, từng khu vực.

  • Vận hành êm ái: Dàn lạnh hoạt động rất êm, không gây tiếng ồn, đảm bảo sự yên tĩnh tuyệt đối cho không gian sống và làm việc.

  • Hiệu suất cao: Hệ thống có khả năng làm mát hoặc sưởi ấm cùng lúc, hoạt động ổn định và hiệu quả ngay cả trong điều kiện thời tiết khắc nghiệt.

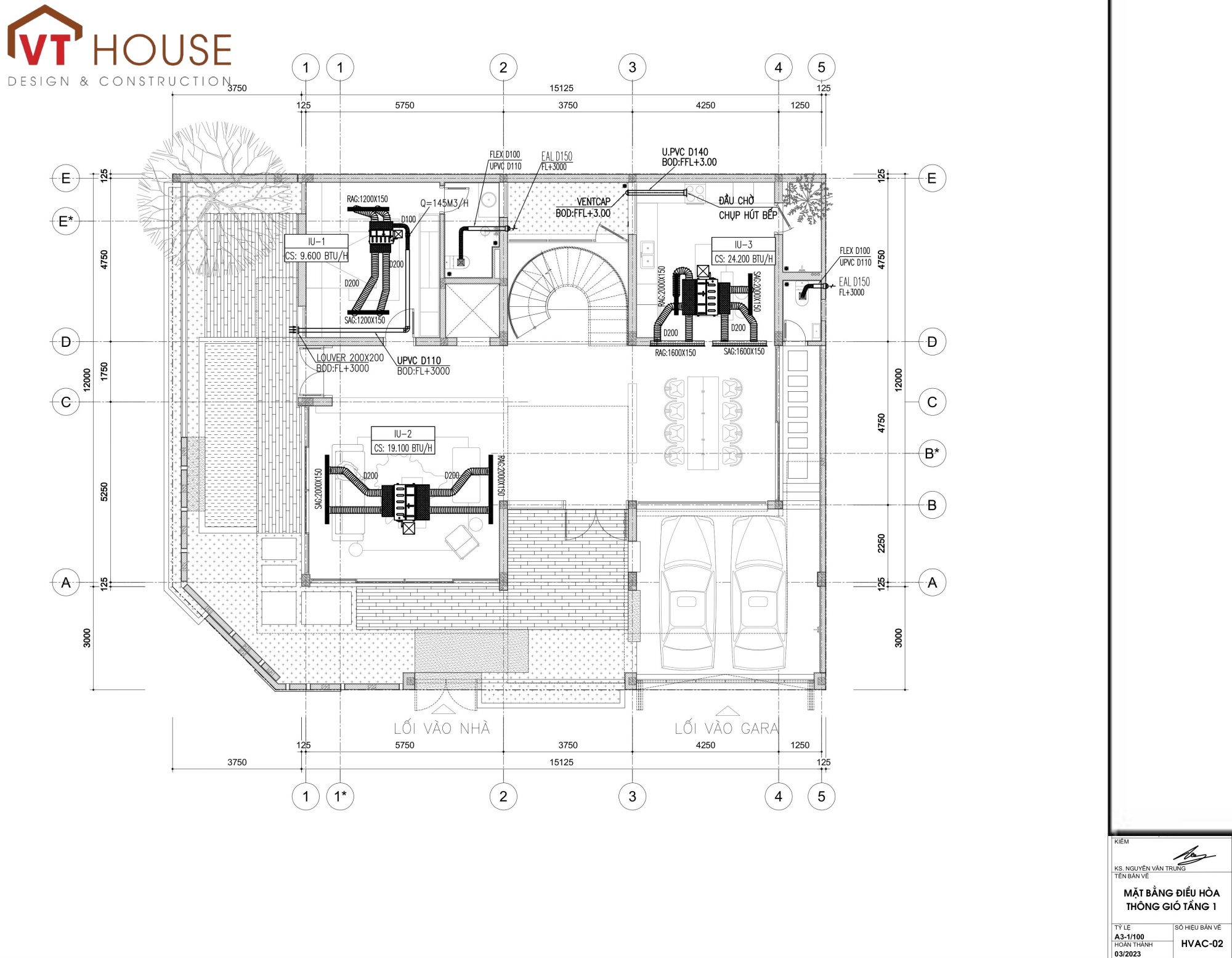
Bố Trí Hệ Thống Điều Hòa Thông Gió Cho Biệt Thự Moceva

Hồ sơ thiết kế của VT-House đã thể hiện rõ sự tính toán kỹ lưỡng về vị trí và công suất của từng dàn lạnh. Các bản vẽ mặt bằng chi tiết cho thấy:

  • Bố trí dàn lạnh: Tùy thuộc vào chức năng và diện tích của từng phòng (phòng khách, phòng ngủ, phòng làm việc), các kỹ sư đã lựa chọn và bố trí các loại dàn lạnh phù hợp, đảm bảo hiệu quả làm mát tối đa. Các dàn lạnh được lắp đặt âm trần, chỉ để lộ cửa gió, mang lại vẻ đẹp tinh tế và hiện đại cho không gian.

  • Đường ống gió và cửa gió: Hệ thống đường ống gió được thiết kế âm trần, dẫn không khí đã được làm mát đến các cửa gió được bố trí một cách hợp lý, đảm bảo luồng gió lan tỏa đều khắp phòng, không gây cảm giác lạnh buốt cục bộ.

Đảm Bảo Chất Lượng Thiết Kế Chuẩn Mực

VT-House Design & Construction luôn tuân thủ các tiêu chuẩn kỹ thuật nghiêm ngặt trong quá trình thiết kế. Điều này đảm bảo:

  • Tính toán tải nhiệt chính xác: Dựa trên diện tích, số người sử dụng, hướng nhà và vật liệu xây dựng để tính toán công suất máy lạnh phù hợp, tránh lãng phí hoặc thiếu công suất.

  • Thiết kế đường ống hợp lý: Đường ống gas và ống đồng được tính toán kích thước chuẩn, chiều dài tối ưu, đảm bảo hiệu suất truyền nhiệt tốt nhất cho hệ thống.

  • Đường ống thoát nước ngưng: Hệ thống thoát nước được thiết kế với độ dốc phù hợp, đảm bảo nước ngưng thoát nhanh chóng, không gây đọng nước, rò rỉ hay ẩm mốc.

  • Hệ thống thông gió: Bổ sung hệ thống thông gió cục bộ cho các khu vực kín như phòng vệ sinh, phòng bếp để loại bỏ mùi hôi, hơi ẩm và đảm bảo không khí luôn trong lành.

Với giải pháp điều hòa thông gió VRV/VRF được thiết kế bởi VT-House, Moceva Villa không chỉ là một ngôi nhà sang trọng mà còn là một không gian sống lý tưởng, tiện nghi và thân thiện với môi trường. Dự án này là minh chứng rõ nét cho năng lực và sự chuyên nghiệp của VT-House trong lĩnh vực tư vấn thiết kế MEPF.


Bản quyền thuộc về VTHouse Design & Construction
Hotline/ Zalo liên hệ: 0329.978.883

Fanpage: Kỹ sư Nguyễn Văn Trung - Cơ Điện VT-House

Fanpage: VT-House thiết kế MEPF

VTHouse Design & Construction – Nền tảng vững chắc cho mọi công trình!