Giải Pháp Thiết Kế Cấp Thoát Nước Thông Minh Cho Biệt Thự Cao Cấp Tại TP. Vinh

Giải Pháp Thiết Kế Cấp Thoát Nước Thông Minh Cho Biệt Thự Cao Cấp Tại TP. Vinh

Hệ thống cấp thoát nước (CTN) được ví như "hệ tiêu hóa" của một ngôi nhà. Một thiết kế CTN tốt không chỉ dừng lại ở việc có nước để dùng, mà phải đảm bảo áp lực nước luôn ổn định, thoát nước nhanh chóng và đặc biệt là xử lý triệt để vấn đề mùi hôi. Tại dự án biệt thự gia đình Nghệ An, VT House đã ứng dụng những tiêu chuẩn kỹ thuật hiện đại nhất để mang lại trải nghiệm sử dụng hoàn hảo.

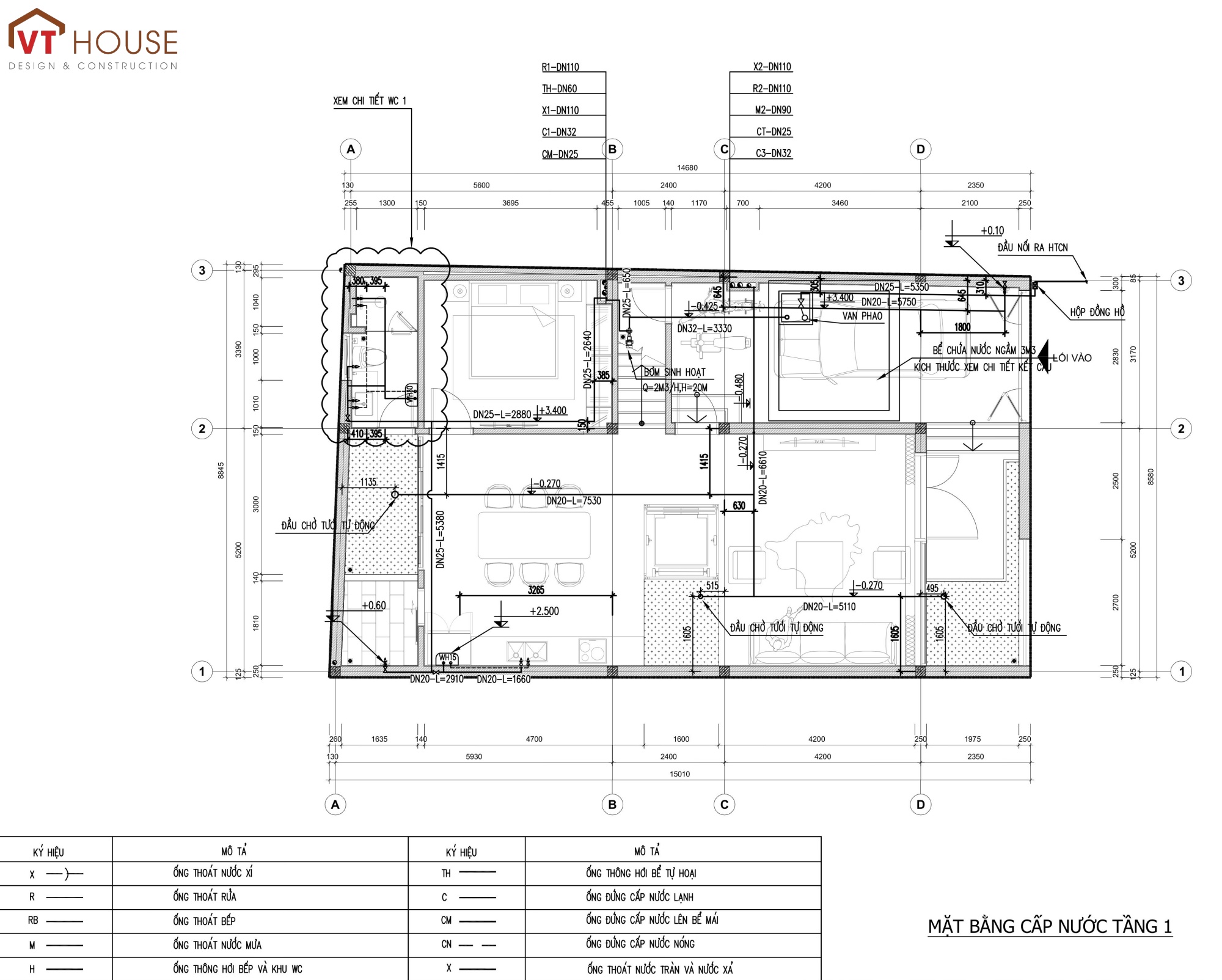
1. Sơ Đồ Nguyên Lý Cấp Nước Hiện Đại

Hệ thống cấp nước của dự án được thiết kế theo mô hình hai cấp kết hợp giữa bể chứa ngầm và két nước mái.

  • Cấp nước thông minh: Nước từ hạ tầng thành phố được dẫn qua đồng hồ DN20 vào bể chứa 3m^3 dưới ngầm. Từ đây, bơm sinh hoạt công suất 2m^3/h sẽ đẩy nước lên két inox trên tầng tum để dự trữ.

  • Áp lực nước ổn định: Để giải quyết tình trạng nước yếu ở các tầng cao, VT House bố trí cụm bơm tăng áp tại tầng tum, đảm bảo các thiết bị như sen tắm massage hay vòi rửa luôn có áp lực mạnh nhất.

  • Hệ thống tưới cây tự động: Một điểm nhấn tiện nghi là hệ thống van điện từ và đường ống DN20 phục vụ tưới cây tự động tại các ban công và khu vực sân vườn.

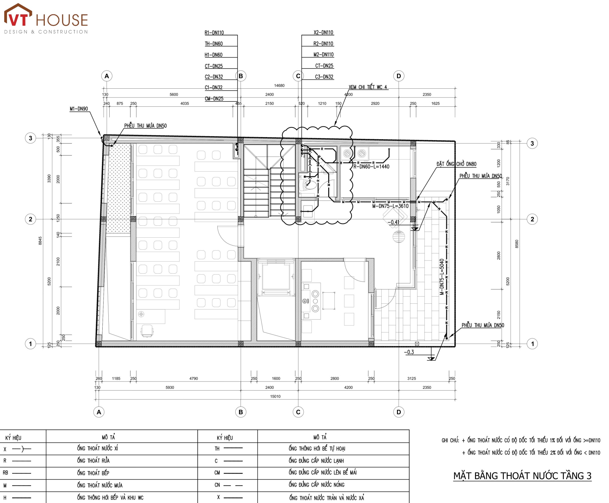
2. Sơ Đồ Nguyên Lý Thoát Nước & Xử Lý Chất Thải

Hệ thống thoát nước được tách biệt hoàn toàn giữa nước xám (rửa, sàn, mưa) và nước đen (xí bệt) để đảm bảo vệ sinh.

  • Thoát nước nhanh: Các đường ống chính sử dụng kích thước lớn như DN110 cho trục thoát xí và DN90 cho thoát sàn, rửa, giúp ngăn ngừa tình trạng tắc nghẽn.

  • Xử lý mùi triệt để: Hệ thống ống thông hơi (TH-DN60) được đưa lên cao quá mái giúp giải phóng khí gas, ngăn chặn mùi hôi trào ngược vào phòng vệ sinh.

  • Thoát nước mưa: Các phễu thu nước mưa trên mái và ban công được tính toán lưu lượng kỹ càng, dẫn qua trục DN90 trực tiếp ra mương thoát nước chung của khu vực.

3. Mặt Bằng Bố Trí Thực Tế Các Tầng

Trên bản vẽ mặt bằng tầng 1, 2 và 3, các đường ống được tính toán đi gọn gàng trong hộp kỹ thuật (hộp gen).

  • Độ dốc tiêu chuẩn: VT House cam kết độ dốc tối thiểu 1% đối với ống DN110 và 2% đối với ống < DN110, đảm bảo dòng chảy tự nhiên và tự làm sạch đường ống.

  • Vị trí thiết bị: Các đầu chờ cấp thoát nước được định vị chính xác theo tiêu chuẩn nhân trắc học, phù hợp với mọi thiết bị vệ sinh cao cấp trên thị trường.

Tiêu chuẩn chất lượng từ VT House

Trong mỗi thiết kế MEPF, VTHouse luôn tuân thủ:

  • Tiêu chuẩn TCVN: Đáp ứng đầy đủ các quy định về cấp thoát nước cho nhà ở và công trình công cộng.

  • Vật liệu bền bỉ: Ưu tiên sử dụng ống nhựa chịu nhiệt PPR cho cấp nước và PVC loại dày cho thoát nước.

  • Tính bảo trì: Luôn có các vị trí tê kiểm tra để dễ dàng xử lý khi có sự cố sau nhiều năm sử dụng.


Bản quyền thuộc về VTHouse Design & Construction
Hotline/ Zalo liên hệ: 0329.978.883

Fanpage: Kỹ sư Nguyễn Văn Trung - Cơ Điện VT-House

Fanpage: VT-House thiết kế MEPF

Website: vthouse.vn

VTHouse Design & Construction – Nền tảng vững chắc cho mọi công trình!